Vermessungs- und Gebäudeaufnahmen

Gebäudeaufnahmen und Gebäudevermessungen – Präzision für jede Projektphase

Sie haben keine aktuellen Planunterlagen oder veraltete, ungenaue Pläne?

Lassen Sie Ihr Massband zu Hause. Wir helfen Ihnen dabei, Klarheit zu schaffen. Mit unseren professionellen, leistungsstarken Aufnahmen und massgeschneiderten Gebäudeplänen erhalten Sie eine präzise und umfassende Unterlagen Ihr Immobilienprojekt.

Unsere Dienstleistungen unterstützt Sie dabei, fundierte Entscheidungen für Planung oder Umbauten zu treffen.

Entdecken Sie den Mehrwert professioneller Gebäudeaufnahmen – sprechen Sie uns an, um Ihre individuellen Anforderungen zu besprechen.

Der Fokus unserer Gebäude- oder Vermessungsaufnahmen liegt im Speziellen auf folgenden Arbeiten:

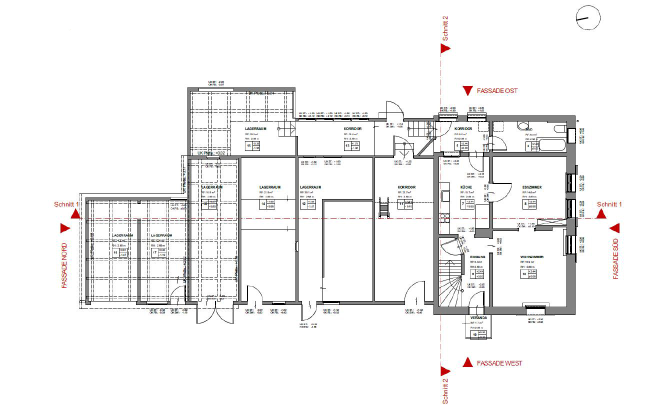
  • Aufnahme der Liegenschaft (Innen und Aussen)
  • Schematischer Grundrissplan
  • Factsheets mit Möblierungsvorschlag
  • 3D-Punktwolke
  • 3D-Modell
  • Kubatur-Berechnungen
  • Flächen-Berechnungen

Wir bieten folgende Formate an (nicht abschliessend):

  • 2D – DWG / DXF/ PDF
  • 3D – Archicad / Vektorworks und CAD / IFC
  • Punktewolke – E57

Referenz Punktwolke

Referenz Volumenberechnung

Referenz Planunterlagen